Horticultural success in Buckinghamshire

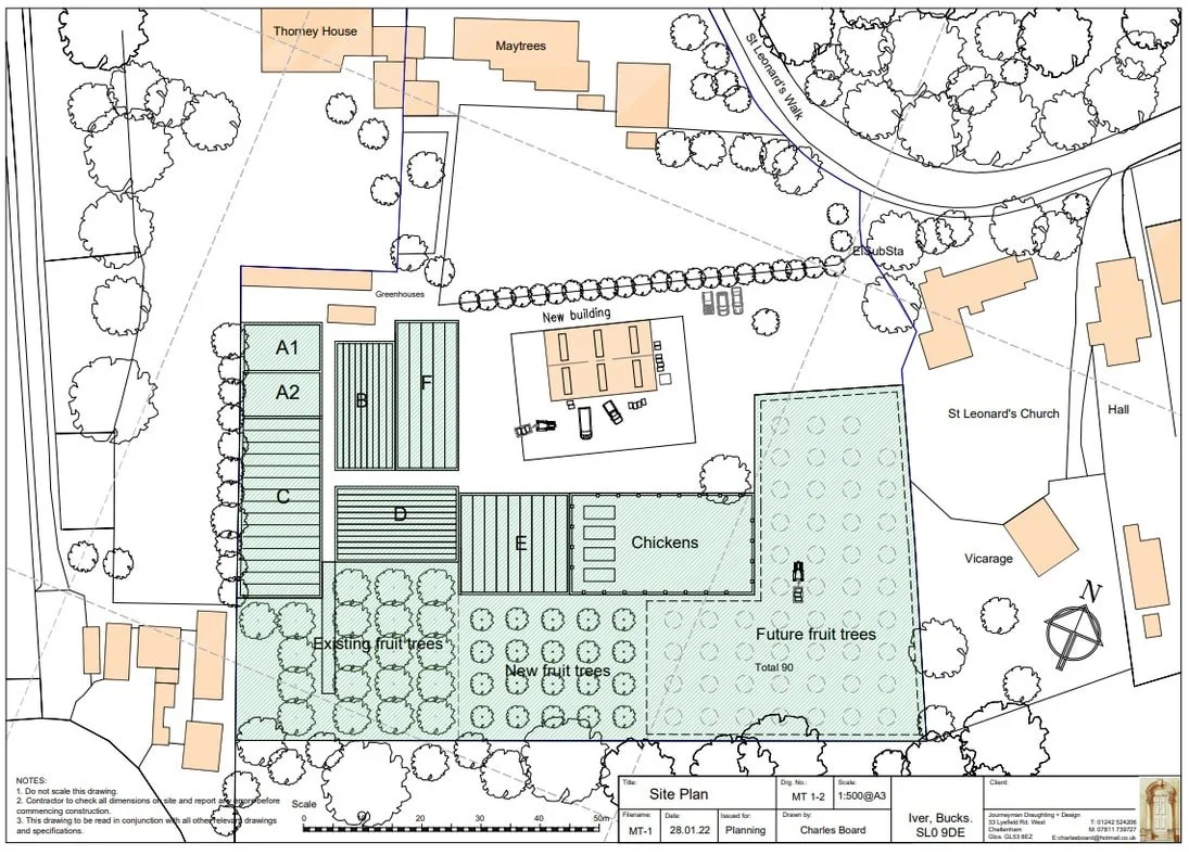
Permission was received this week for the provision of a new horticultural building for a new enterprise within the Metropolitan Green Belt.

New buildings are notoriously difficult to achieve within the Green Belt, particularly where an enterprise is in its very early stages. The application was fully supported with a comprehensive Planning Statement, a full suite of plans, ecological surveys and an in depth Agricultural Justification produced by Harry Epsom MRICS FAAV of Epsom Rural.

Despite the application taking nearly a year to work its way through the planning process, victory belongs at last to our client with no onerous Conditions.

Now that the new horticultural enterprise has a firm base from which to flourish, we look forward to their success.

Previous
Previous

Her Majesty the Queen

Next
Next

Retrospective Listed Building Consent for a Grade II Listed Building in the Cotswolds